


一、HMC單機脈沖袋式除塵器(HMC型)說明:
HMC單機脈沖袋式除塵器采用脈沖噴吹的清灰方式。具有清灰效果好、凈化效率高、處理風量大、濾袋壽命長、維修工作量小、運行安全可靠等等的優點。廣泛用于冶金、建材、機械、化工、礦山等各種工礦企業非纖維性粉塵工業粉塵的除塵凈化與物料回收。
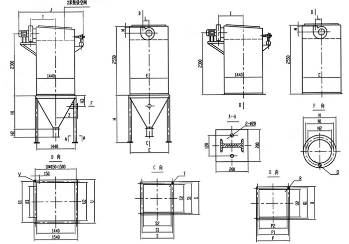
HMC單機脈沖袋式除塵器共有六個規格,每種規格又可分為標準帶灰式A型和敞開法蘭式(無灰斗)B型二種。其結構主要由過濾室、濾袋、凈氣室、灰斗、卸灰閥、脈沖噴吹清灰裝置、電控箱組成,箱體全部采用焊接結構。檢修門用泡沫膠條密封,_除塵器嚴密不漏風。
HMC單機脈沖袋式除塵器構造結構特點:
袋式除塵器本體由殼體、濾袋總成、噴吹清灰裝置、排灰裝置四個部分組成。
殼體部分由上箱體、中箱體、灰斗、進出風口組成。
濾袋總成由濾袋、濾袋框架等組成。
噴吹清灰裝置由氣包、噴吹管、脈沖閥、電磁控制閥、電控儀等組成。
排灰裝置由電機、減速器、螺旋輸送機、星形卸料閥組成。
電磁脈沖閥I型采用直角脈沖閥,Ⅱ型采用直通脈沖閥,減少了脈沖閥自身的阻力,是一種較為理想的脈沖噴吹方式。
二、HMC單機脈沖袋式除塵器工作原理:
HMC型除塵器的進風口設在灰斗上,當含塵氣體從進風口進入灰斗后首先碰上進風口的擋板,由于慣性作用,使用氣體粗顆粒粉塵直接進入灰斗,起到預收塵的作用,進入灰斗的氣流隨后折而向上通過內部裝有金屬骨架的濾袋,粉塵被收集在濾袋的外表面,凈化后的氣體進入濾袋室上部的清潔室,匯集到出風管排出。室內收塵袋分為若干排,按照給定的時間間隔對每排收塵袋進行清灰。當脈沖閥開啟時,即向濾袋內噴入高壓空氣,以_濾袋表面上的灰塵。各排濾袋的脈沖噴吹寬度和清灰周期,由專用的清灰程序控制器自動連續控制。除塵器的構造和工作原參見附圖。
含塵氣體由灰斗(或下部敞開式法蘭)進入過濾室,較顆粒直接落入灰斗或料倉。

| 型號 | HMC-32 | HMC-48 | HMC-64 | HMC-80 | HMC-96 | HMC-112 | |
| 性能 | |||||||
| 處理風量m3/h | 1500-2100 | 2100-3200 | 2900-4300 | 4000-6000 | 5200-7000 | 6000-9000 | |
| 總過濾面積m2 | 24 | 36 | 48 | 60 | 72 | 84 | |
| 過濾風速(m/min) | 1.00-1.50 | 1.00-1.50 | 1.00-1.50 | 1.10-1.70 | 1.20-1.70 | 1.20-1.80 | |
| 濾袋數量(條) | 32 | 48 | 64 | 80 | 96 | 112 | |
| 入口氣體溫度(℃) | ≤120 | ||||||
| 除塵器阻力(Pa) | ≤1200 | ||||||
| 進口粉塵濃度(g/m3) | <200 | ||||||
| 出口排放濃度(mg/m3) | ≤100 | ||||||
| 清灰用壓縮空氣 | 壓力(Pa) | 0.5-0.7 | |||||
| 耗氣量(m3/min) | 0.10 | 0.14 | 0.20 | 0.24 | 0.29 | 0.34 | |
| 承受負壓Pa | 5000 | ||||||
| 脈沖閥數量(個) | 4 | 6 | 8 | 10 | 12 | 14 | |
| 風機用電機功率(KW) | 1.5 | 3.0 | 3.0 | 5.5 | 5.5 | 7.5 | |
| 重量 kg |
A型(帶灰斗) | 1350 | 1620 | 1850 | 2360 | 2800 | 3200 |
| B型(不帶灰斗) | 1220 | 1470 | 1670 | 2150 | 2540 | 2880 | |

冀公網安備 13098102000349號