


簡 介
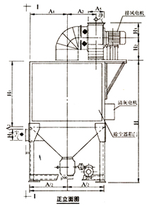
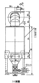
JBC倉頂扁布袋除塵器具有結構簡單緊湊、體積小、維修方便、振動噪音小、效率高等優點。尤其是B型除塵機組可直接安裝在揚塵點上,省去連接風管,簡化除塵系統。JBC系列袋式除塵器分A型和B型。A型有單獨的灰斗和排料器,B型沒有單獨的灰斗,灰斗既是排灰口又是吸塵口。A、B型按風機安裝方式分為Ⅰ型、Ⅱ型,Ⅰ型風機在除塵器本體之上,Ⅱ型風機在除塵器側面。
JBC旁插扁布袋除塵器構造及工作原理
(1)構造。A型由過濾部分、振打裝置、排風裝置、排料器和風管,部分組成;B型由過濾部分、振打裝置、排風裝置和接管4部分組成。
(2)工作原理。含塵氣體由吸風口(B型由灰斗)進入箱體,經布袋過濾,凈氣由布袋內部向右流動進入排風箱,由排風裝置排出。而過濾粉塵附在布袋外壁上,使阻力上升,達到_值后,開啟振打電機,實現振打清灰。
JBC旁插扁布袋除塵器的基本技術性能參數:
|
規 格 性能參數 |
JBC-20 |
JBC-32 |
JBC-45 |
|
|
過濾面積 m2 |
20 |
32 |
45 |
|
|
處理風量 m3/h |
1800-2400 |
2880-3840 |
4050-5400 |
|
|
過濾風速 m/min |
1.5-2 |
1.5-2 |
1.5-2 |
|
|
阻力 Pa |
980 |
980 |
980 |
|
|
效率 % |
99 |
99 |
99 |
|
|
使用溫度 ℃ |
<150 |
<150 |
<150 |
|
|
風
機 |
型 號 |
4-72-11 |
4-72-11 |
4-72-11 |
|
風量 m3/h |
(1975-3640) |
(2430-5408) |
(4020-7420) |
|
|
風壓 Pa |
1245-784 |
1617-1068 |
1999-1313 |
|
|
電機型號 |
Y90-L-2 |
Y100L-2 |
Y132S1-2 |
|
|
電機容量KW |
2.2 |
3 |
5.5 |
|
|
振打 機 |
振幅 mm |
4 |
4 |
4 |
|
電機型號 |
Y90S-4 |
Y90S-4 |
Y90S-4 |
|
|
電機容量KW |
1.1 |
1.1 |
1.1 |
|
|
排料 閥 |
規 格 |
YJD-6200×200 |
YJD-6200×200 |
YJD-6200×200 |
|
電機容量KW |
0.6 |
0.6 |
0.6 |
|
|
|
|
|
|
| JBC旁插扁布袋除塵器 | ||
|
||
| 安裝尺寸表: | ||
|
||

冀公網安備 13098102000349號